Avenue Victor Hugo- Rue de la Pompe. Dans un immeuble Haussmannien de standing, au 6ème étage, ensemble de lots de chambres de services en bon état. deux salles d'eau avec WC. l'une des chambres actuelle est une studette de 14 m2 pouvant être agrandie par une 2eme chambre mitoyenne.
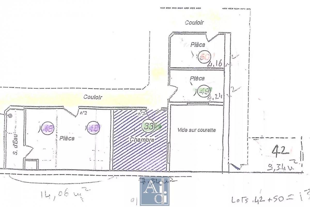
Pour les lots 42 et 50 DPE E
Pour les lots 49 et 33 DPE G
Pour le lot 48 DPE D
Nombre de lots total : 50 Procédure en cours
Digicode
, Bus, Commerces, Crèche, École primaire, École secondaire, , Médecin, Métro, Parking public, Salle de sport, Supermarché, Taxi
Nos honoraires sont à la charge de l’acquéreur.
Énergie : diagnostic en cours.
48.87078, 2.27787
contactez nous
ADRESSE
124, Avenue Victor Hugo
75116 Paris
HORAIRES
Lundi au Vendredi
9:30 - 18:30
Samedi 10:00 - 18:00
TÉLÉPHONE ET EMAIL
Tél. : 01 47 27 26 23
paris@aici.fr
75116 Paris

